Loading
Loading


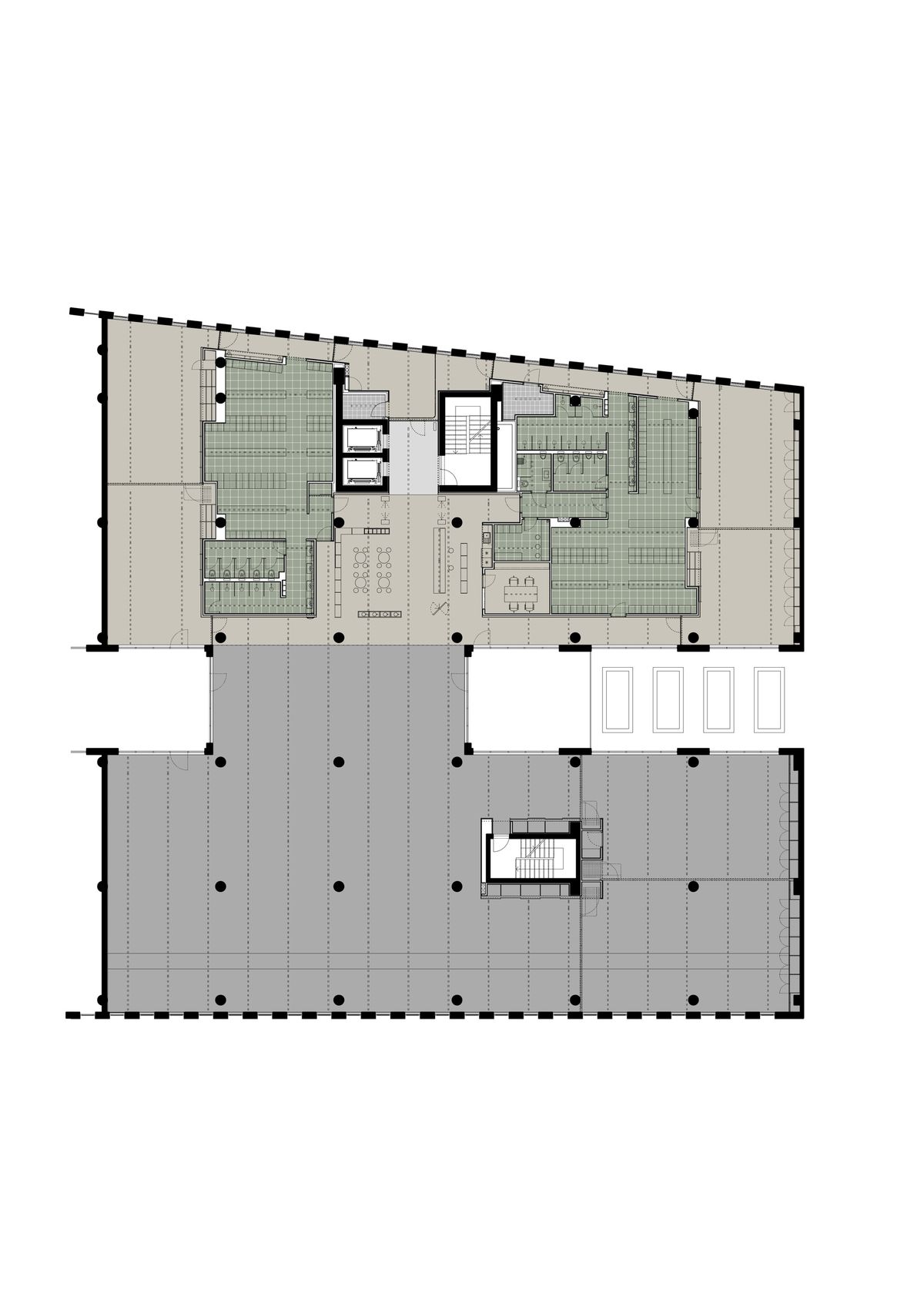
Osnovna namjera pri stvaranju interijera Dvorane bila je kvalitetna prostorna organizacija koja bi omogućila atraktivne i funkcionalne prostore za vježbanje, te jednostavno snalaženje i cirkulaciju korisnika.
Već je u početnoj tlocrtnoj koncepciji postavljen cilj rasterećenja pročelja kako bi se omogućilo prirodno osvjetljenje s dvije strane i učinkovita poprečna ventilacija prostorija za vježbanje. Stoga su servisni prostori, svlačionice i sanitarije smješteni u dubinu tlocrta, uz postojeće komunikacijske jezgre stubišta i dizala. Time su na uglovima oslobođeni prostori za dvorane – bogato osvijetljene, ventilirane mehanički i prirodno, opremljene kontinuiranim nizom zidnih ogledala i pogledom prema okolnom naselju. Dvorane se mogu fleksibilno pregraditi u nekoliko manjih cjelina, ovisno o programu i kapacitetu vježbanja