Loading
Loading


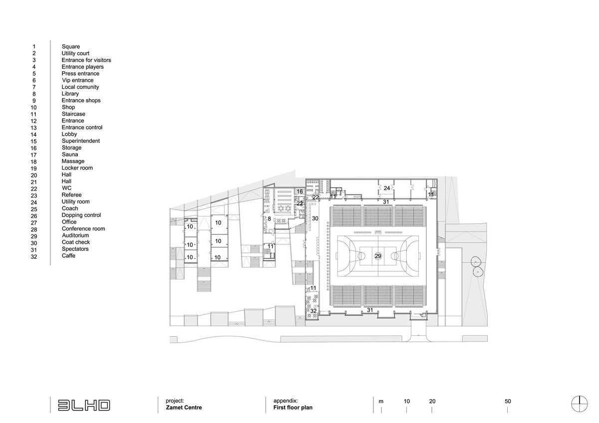
Centar Zamet nalazi se u riječkoj četvrti Zamet, a zamišljen je kao društveni centar koji istodobno obuhvaća više sadržaja - sportsku dvoranu kapaciteta 2380 mjesta, mjesnu upravu s polivalentnom dvoranom, ogranak gradske knjižnice, lokale za trgovačke, uslužne, sportske i ugostiteljske sadržaje, te javnu garažu.
Sportska dvorana trećinom svog volumena usječena je u teren, dok se objekt s javnim i uslužnim sadržajima potpuno u njega uklapa. Glavni oblikovni element su ‘trake’; duge, uske strukture koje se protežu u smjeru sjever-jug te funkcioniraju kao urbanistički element koji istodobno tvori javni trg i sponu između parka i škole na sjeveru te Ulice Bože Vidasa na jugu.