Loading
Loading


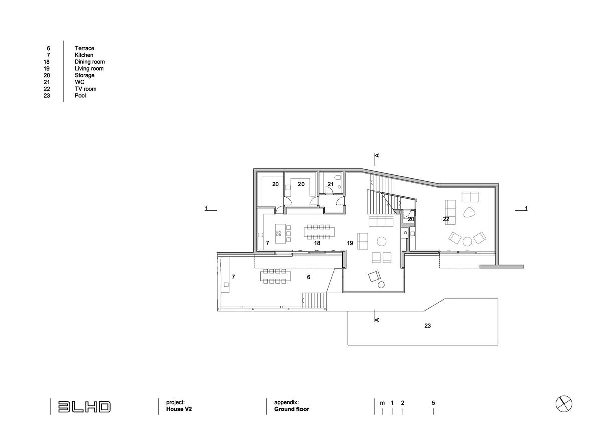
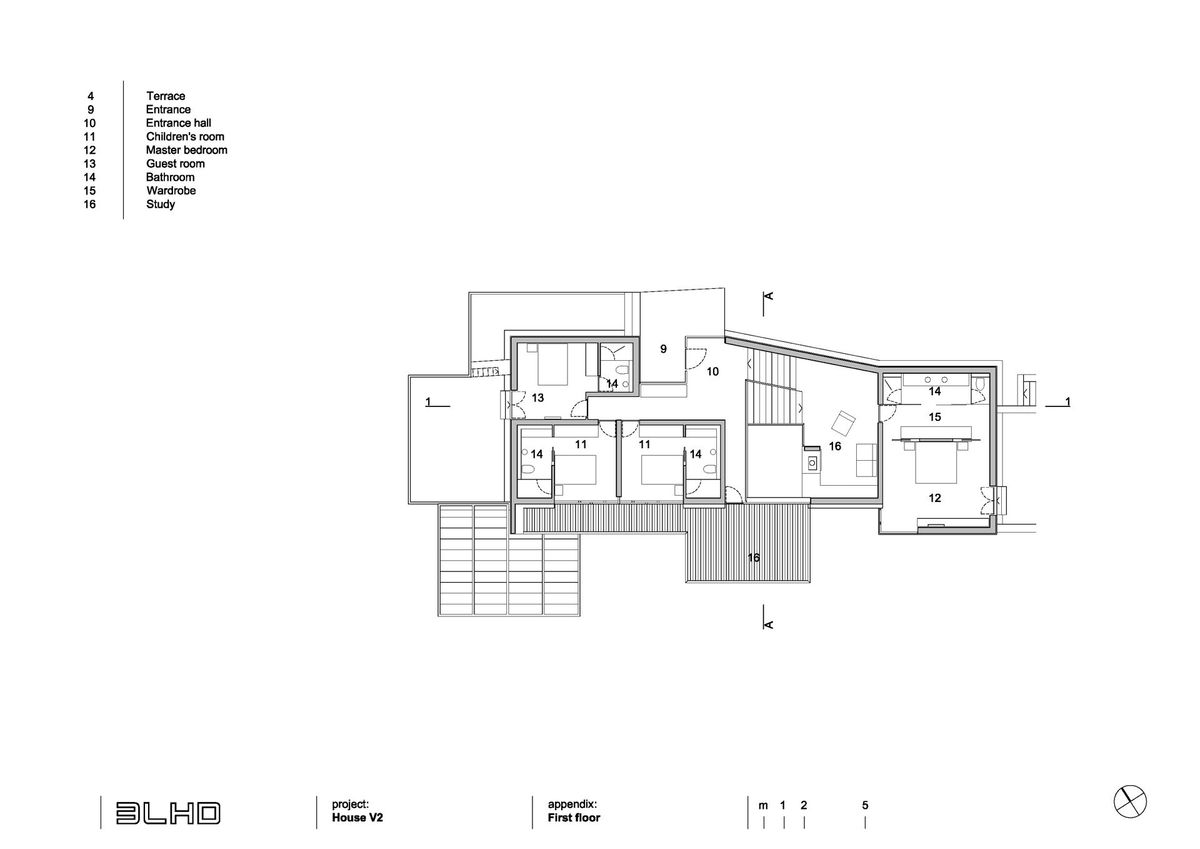
Kuća V2 nalazi se u Dubrovniku, u Lozicama; neposredno uz more, na strmom terenu s podzidima, terasama i stepenicama, gdje je zamijenila stari, neodgovarajući objekt. Osnovni koncept pri formiranju životnog ambijenta bio je stvoriti kuću istovremeno otvorenu prema prirodi, ali i dovoljno zaštićenu od klimatskih utjecaja.
Veliki staklenim stijenama na fasadi maksimalno je iskorišten prekrasan i izuzetno kvalitetan pogled koji se pruža s parcele. Horizontalna krovna ploča slijedi unutarnju strukturu, ali i definira tijelo kuće koje je svojom geometrijom ugrađeno u pejzaž. Jednostavna bijela kamena fasada u skladu je, ali i u kontrastu sa suhozidom.