Loading
Loading


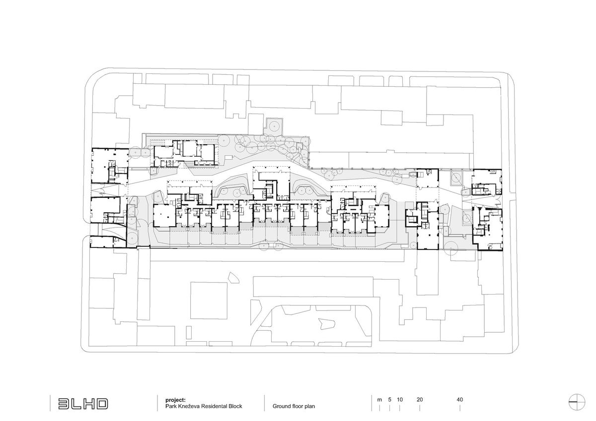
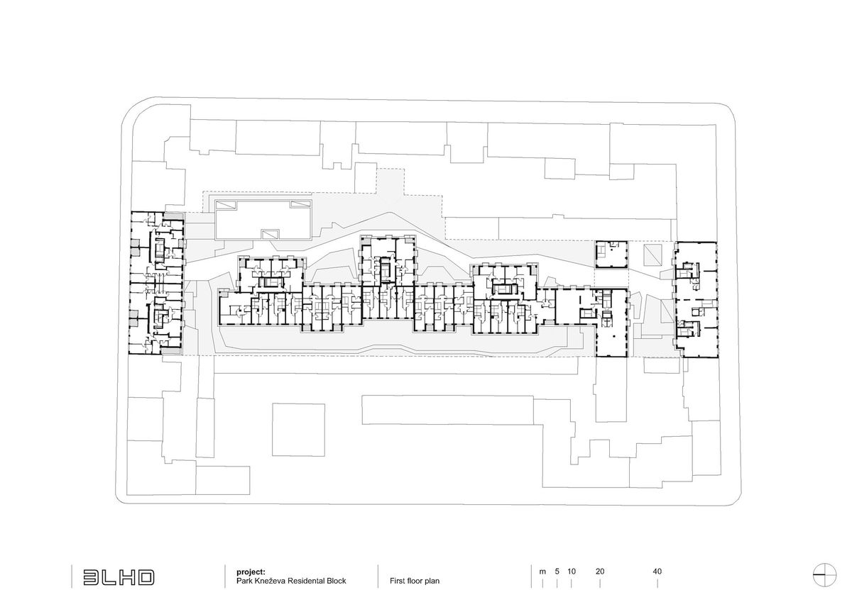
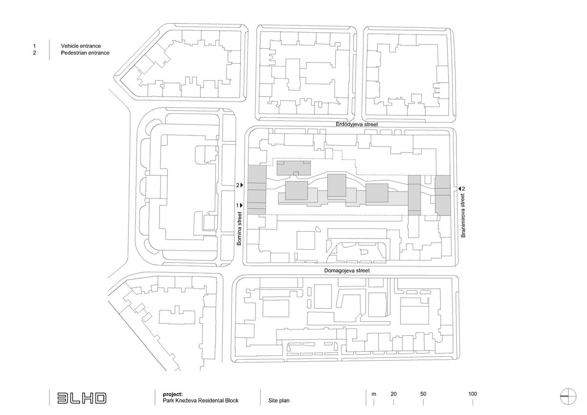
Park Kneževa urbani je blok u zagrebačkom Donjem Gradu; smješten između Branimirove i Bornine ulice, na prostoru stambeno-industrijskog bloka bivše tvornice Nada Dimić i tvornice Penkala.
Otkad su 90-ih zatvorene, tvornice su godinama propadale, a nakon njihova uklanjanja stvoren je golemi prazan prostor u središtu grada, koji je omogućio kvalitetnu urbanističko-arhitektonsku intervenciju.